夏はBBQに、水遊び、スイカ割り。秋は七輪で秋刀魚と栗を焼く。窓を開ければ、すぐに青空の真下、風を感じる、ウッドデッキのある暮らし。
心踊るような、うっとりするような、
自分の好きな時間で日々を満たせるように。
建築家が想いを巡らせた間取りで叶える、理想の暮らし。家のかたちは十人十色。
もっと自由に、自分たちだけの特別な住まいで、豊かな毎日を。こんな暮らしがしてみたい。
あんな場所があったらいいな。
必要最低限ではなく、小さな夢を乗せて。
madreeより、あなたの理想の暮らしを叶える間取りをお届けします。#間取りで叶える理想の暮らし
デッキの緑と暮らす
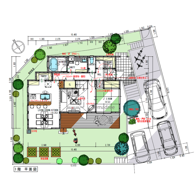
キッチン、水回りの導線をつなげて捗る家事。リビング近くにあるスタディールームやカウンターデスク。家族の気配を感じつつ、それぞれの時間を楽しめる空間がここにある。

[41坪 2LDK] 家事捗る水廻りレイアウトで、家族集まるくつろぎ空間ある家の間取り図|「madree(マドリー)」
水遊びが楽しい
中庭デッキで、ビニールプールを膨らませて水遊び。屋上デッキで、望遠鏡を覗いて天体観測。自分たちだけの空間で、自然と、空とつながる。

[41坪 4LDK] 中庭デッキでプライバシー確保、治療院兼用の家の間取り図|「madree(マドリー)」
自分だけの贅沢なひととき
小さな畑でとれた野菜とハーブでこしらえた一皿。豆を挽いてぽこぽこ淹れる一杯の珈琲。緑の庭とウッドデッキで叶える、ささやかな贅沢。

[36坪 4LDK] 吹抜で天井が高く明るく、家庭菜園も楽しめる家の間取り図|「madree(マドリー)」
注文住宅をお考えの方へ
マドリーは、全国の建築家が、あなただけの間取りをつくるサービスです。
間取り一覧ページに掲載されているプランは、マドリー登録の建築家がご利用者さまに作成したものです。ぜひ家族や自分の”好き”を叶える間取りを見つけてみてください。
【間取りを作りたい方は】
マドリーでは全国の建築家が、お客様の希望条件に合った間取りを作成しています。公式サイトから会員登録の上、マイページの作成依頼フォームよりご依頼ください。
【住宅会社にお悩みの方は】
『LIFULL HOME’S住まいの窓口』を通して、厳選した約200社の中からハウジングアドバイザーがあなたに合った建築会社をご提案いたします。その他に、家づくりの進め方や予算の立て方などなにから始めたらよいかお悩みの方のご相談も可能です。
『LIFULL HOME’S住まいの窓口』ご利用キャンペーンのご紹介

『LIFULL HOME’S 住まいの窓口』に個別相談or家づくり講座を受講いただける場合、ご予約完了後にキャンペーン価格で間取り作成できます。『お試しプラン』(1案)が無料、複数の建築家から間取り提案を受けられる『プレミアムプラン』なら
税込34,800円(15,000円OFF)!
※プレミアムプランの間取り提案数は平均9.8案。