本日は、キッチンが家の中心にある家事動線が最短の家事楽間取りをご紹介します。
ご主人が夜勤もあるお仕事のため生活リズムにずれがあり、ワンオペになることも多いご依頼者さま。お互いに気持ちよく生活できるよう家事楽&生活音が気になりにくい間取りを目指しました!
ご依頼者さまの情報
【家族構成】
30代ご夫婦・お子様2人(3歳・2歳)(将来的にもう1人増えたらと思っている)
【趣味】
映画鑑賞・漫画・ゲーム・ネイル
【ライフスタイル】
- ご主人は夜勤があり、日勤の日も早朝に出勤する。土日も仕事のときがある。
【ご要望】
- お客さんが来ている時に仕事の準備をしていてもお互いに気にならないようにしたい
- 生活リズムにずれがあるので、生活音が気になりにくい間取りにしたい
- 近隣飲食店からの匂い移りが気になるので、布団も洗濯物も部屋干ししたい
\間取りはこちら/
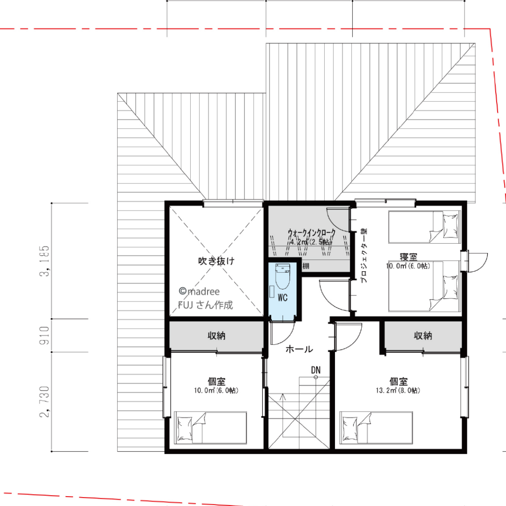
間取りのポイント

家族分の洗濯物が部屋干しできる4.0帖のランドリールーム。洗面~ファミリークロークへとつながっているので、裏動線で身支度ができます。
キッチンからもアクセスできる脱衣・ランドリールームは、回遊できる家事動線で使いやすさに配慮しました。キッチンが中心にあることでリビングにもダイニングにも距離が近くなり、ワンオペでもお子様たちに目が行き届きます。
\面積はこちら/
- 1階床面積 80.90㎡(24.3坪)
- 2階床面積 47.20㎡(14.1坪)
- 延床面積 128.10㎡(38.4坪)
こちらの間取りについて、詳しく知りたい方は下記ページよりご覧ください。
[38坪 3LDK] キッチン中心に短く繋がる、生活にゆとりが生まれる楽家事動線の家の間取り
注文住宅をお考えの方へ
マドリーは、全国の建築家が、あなただけの間取りをつくるサービスです。
間取り一覧ページに掲載されているプランは、マドリー登録の建築家がご利用者さまに作成したものです。ぜひ家族や自分の”好き”を叶える間取りを見つけてみてください。
【間取りを作りたい方は】
マドリーでは全国の建築家が、お客様の希望条件に合った間取りを作成しています。公式サイトから会員登録の上、マイページの作成依頼フォームよりご依頼ください。
【住宅会社にお悩みの方は】
『LIFULL HOME’S住まいの窓口』を通して、厳選した約200社の中からハウジングアドバイザーがあなたに合った建築会社をご提案いたします。その他に、家づくりの進め方や予算の立て方などなにから始めたらよいかお悩みの方のご相談も可能です。
『LIFULL HOME’S住まいの窓口』ご利用キャンペーンのご紹介

『LIFULL HOME’S 住まいの窓口』に個別相談or家づくり講座を受講いただける場合、ご予約完了後にキャンペーン価格で間取り作成できます。『お試しプラン』(1案)が無料、複数の建築家から間取り提案を受けられる『プレミアムプラン』なら
税込34,800円(15,000円OFF)!
※プレミアムプランの間取り提案数は平均9.8案。
詳しく見る

