「家族の近くに住みたいが、プライバシーはきちんと確保したい。」
「各世帯の生活リズムがバラバラ・・・」
「家事や育児を協力し合ってにぎやかに過ごしたい。」
など、家族との関係性や生活状況によって、最適な間取りは大きく変わります。
本記事では、二世帯住宅の間取りの種類とそれぞれのメリット・デメリット、家族で話し合っておくと良い生活費の分担方法について解説します。
目次
二世帯住宅の間取りの種類とメリット・デメリット
二世帯住宅の間取りには大きく分けて「完全分離型」「部分共有型」「完全同居型」の3つのタイプがあります。
これから、それぞれの意味やメリット・デメリットについてお話します。
マドリーの建築家・デザイナーが作成したタイプ別の間取り実例も合わせて紹介しますので、ぜひ参考にしてみてください。
①完全分離型
完全分離型とは、玄関・LDK・お風呂など、全てを別々に設置するタイプのことです。
プライバシーが確保しやすくなる点がメリットですが、建築コストが高くなってしまう点がデメリットです。それぞれのライフスタイルを大切にして生活したいご家族におすすめです。
マドリーの建築家・デザイナーが、お客様からの依頼で実際に作成した完全分離型の間取りを一つご紹介します。
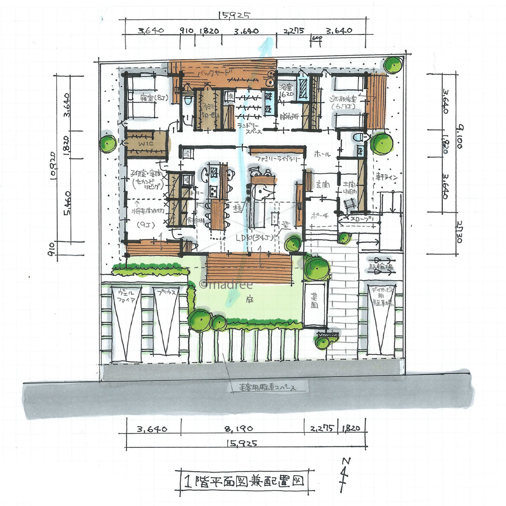
■[55坪 パントリー] 壁面活用し部屋を広く使う、ウッドデッキでつながる二世帯住宅の間取り
![[55坪 パントリー] 壁面活用し部屋を広く使う、ウッドデッキでつながる二世帯住宅の間取り](https://blog.madree.jp/wp-content/uploads/2023/01/1a0a41da973f1ae40bcce94c38316bb3.jpg)
家族構成は、夫婦と子ども2人+父、妹+猫3匹の二世帯です。お互いのプライバシーを守りつつも、中庭のウッドデッキに集ってBBQなど楽しむことができます。
こちらの間取りについて、詳しく知りたい方は下記ページをご覧ください。
[55坪 パントリー] 壁面活用し部屋を広く使う、ウッドデッキでつながる二世帯住宅の間取り図|「madree(マドリー)」
※2階の間取りは、無料会員登録をしていただくと見られます。
他の完全分離型の間取りも見てみたい!という方は、下記ページにまとめておりますので、ぜひこちらも参考にしてみてください。
完全二世帯の間取り一覧|理想の間取り図と出会う「madree(マドリー)」
②部分共有型
部分共有型とは、玄関や水回りなど、一部の設備を共有するタイプのことです。共働き世帯が増えてきている中で、その良さが再認識されています。
メリットは、共有部分が多くなるほど建築コストは抑えられ、家事や育児を協力しやすくかつ程よく距離を保てる点です。デメリットは、完全分離型ほどはプライバシーをしっかりと確保できず、同居する他世帯への配慮が必要、共有の設備がある分、生活費の負担割合が把握しにくいといった点が挙げられます。どの設備を共有とするのか、共有部分の使い方などを事前によく話し合っておくと良いでしょう。
マドリーの建築家・デザイナーが、お客様からの依頼で実際に作成した部分共有型の間取りを一つご紹介します。
■[50坪 5LDK] 視線をずらしてプライバシー確保、和室で繋がる心地良い二世帯住宅の間取り
![[50坪 5LDK] 視線をずらしてプライバシー確保、和室で繋がる心地良い二世帯住宅の間取り](https://blog.madree.jp/wp-content/uploads/2023/01/3d8ebd061d40e0eef7125724ad5947b7.jpg)
家族構成は、夫婦と子ども2人+母の二世帯です。二世帯が和室でつながっており、プライバシーを確保しつつも心地よい距離感で過ごせます。
こちらの間取りについて、詳しく知りたい方は下記ページよりご覧ください。
[50坪 5LDK] 視線をずらしてプライバシー確保、和室で繋がる心地良い二世帯住宅の間取り図|「madree(マドリー)」
他の部分共有型の間取りも見てみたい!という方は、下記ページにまとめておりますので、ぜひ参考にしてみてください。
一部二世帯の間取り一覧|理想の間取り図と出会う「madree(マドリー)」
③完全同居型
完全同居型とはすべての設備を共有するタイプのことです。
メリットは、建築コストや電気代・ガス代などのランニングコストが抑えられる点です。建築コストは、3種類の中で最も抑えられます。デメリットは、プライバシーの確保が難しいため生活リズムが合わないとストレスを感じやすい、生活費の負担割合が把握しにくいといった点が挙げられます。
食事の時間や帰宅時間などの生活リズムが各世帯である程度揃っているご家族におすすめです。家事や育児を協力しながら、にぎやかに生活できます。
マドリーの建築家・デザイナーが、お客様からの依頼で実際に作成した完全同居型の間取りを一つご紹介します。
■[50坪 4LDK] 共働き夫婦が、車椅子の両親と同居する平屋の間取り
![[50坪 4LDK] 共働き夫婦が、車椅子の両親と同居する平屋の間取り](https://blog.madree.jp/wp-content/uploads/2023/01/20394059299f568d159ba09f15f9accd-1.jpg)
家族構成は、夫婦と子ども1人+両親の二世帯です。車椅子のお父様や介護する他のご家族全員が快適に過ごせるよう、バリアフリーに配慮された平屋の間取りです。
こちらの間取りについて、詳しく知りたい方は下記ページよりご覧ください。
[50坪 4LDK] 共働き夫婦が、車椅子の両親と同居する平屋の間取り図|「madree(マドリー)」
二世帯住宅を検討されたマドリーのお客様事例
実際にあったマドリーのお客様からのご相談内容をご紹介します。

完全分離型の二世帯住宅にしたいです。でも、コストの問題で一部共有にしないといけないでしょうか?
マドリーからは、玄関と土間収納を共有する部分共有タイプをご提案しました。
各自の部屋に入る場所には鍵をつけることでプライバシーが守られるので、適度な距離感を保ちつつ、広い土間収納も共有できて、建築コストとして約200万円程度抑えることも可能です。
まずはお互いの生活スタイルと同居に対する考え方を良く話し合ってみてください。ご両親様が育児(お孫さんのお世話)にもっと関わりたいと考えてくれていたり、家事を協力して行う生活が見えてきたりもします。逆に、お互いが生活を分けた方がうまくいくだろうという結論になれば、無理に二世帯住宅を建てるのではなく、別の敷地で近居という選択になるかもしれません。
確かにコスト面は必ず直面する問題なのですが、二世帯のタイプを検討する際には、そこだけを切り取って決めるのではなく、ご家族全員でいろいろな切り口から考えて方向性を決めておくことが、成功のカギになってくると思います。
例えばこんな切り口で相談してみてください!
- 玄関共有の場合、キッチン共有の場合など一部を共有したパターンだと生活はどうなる?
- 家事、育児を二世帯で分担するとどんな生活になる?
- 将来的に介護が必要になったらどう生活する?
「絶対完全分離!」などの固定概念を一度白紙にして、家族でじっくりお話してみてくださいね。
【トラブル回避のために】住んだ後にかかるお金の分担を決めておこう
二世帯住宅を計画する際、間取りや生活スタイルの話は当然されますよね。そして、みんなが心の中では思っているけれど、なかなか話題に出しづらいのが、住んだ後のお金の分担の話です。完全分離型ならば、メーターを分けて完全に生活費を分けることも可能です。しかし、共有部分がある場合は生活費も共有になってくるので、しっかり話し合っておかないと、後々モヤモヤの元となりトラブルになりかねません。
まずは、生活に必要な項目を洗い出し、それぞれの負担をどのように分担するのかしっかりと話し合うようにしてくださいね。費用の分担は、各世帯の収入を考慮したうえで決定する方がお互いにメリットがあります。二世帯住宅の計画時~入居までの間に、よく話し合ってそれぞれに最適な分担を設定することが大事なポイントです!
水道光熱費
メーターを分けられる場合は、分けると費用分担は明確です。水道の場合は子メーターを付けると、各世帯でどのくらい使用したかわかるので費用分担もしやすくなります。設備を共有している場合は主に使う世帯が負担する形をとるご家族もあります。
住居費
住宅ローンや火災保険、家の修繕費などです。ローンは親世帯、子世帯それぞれで計画時に話し合うと思いますが、修繕費などは意外と盲点となります。
税金
住宅の固定資産税などもかかってきます。登記の際の建物の持ち分を決めるのとあわせて考えておくと良いでしょう。
通信費
通信費は、電話料金やインターネット通信費などが含まれます。例えば、固定電話は親世帯しか利用しない・親世帯はインターネットを利用しない、といった状況であれば、主に利用している世帯が負担するようにしても良いでしょう。
教育費や被服費・娯楽費など使う世帯が明確な項目は、各々で負担することがほとんどです。注意すべきは、使用が重複し明確に分けるのが難しい項目です。項目別に負担する世帯を決めておくことが多いですが、負担してもらっている側は配慮し合って生活するのが一番のポイントだと思います。各項目を折半して支払う家庭もあれば、親世帯が引退しているので、子世帯が主に生活費を負担するようにしているご家庭もあります。稀ですが、親世帯が多くの項目を負担しているケースもあるようです。
どういった形が一番合うかは、各ご家庭の収入の状況やライフステージに大きく左右されますので、しっかりと話し合いながら決めていきましょう。
まとめ
二世帯住宅には、「完全分離型」「部分共有型」「完全同居型」の3種類があり、家族との関係性や生活スタイルによって暮らしやすい間取りは異なります。まずは、ご自身の暮らしに合った間取りのタイプを見つけましょう。
また、住んだ後にかかるお金のお話は、計画初期段階ではなかなか話せない内容だと思うので、頭の片隅に入れておき、間取りが仕上がり、新しいお住まいでの生活のイメージが出来てきたタイミングでお話しするのがおすすめです。
注文住宅をお考えの方へ
マドリーは、全国の建築家が、あなただけの間取りをつくるサービスです。
間取り一覧ページに掲載されているプランは、マドリー登録の建築家がご利用者さまに作成したものです。ぜひ家族や自分の”好き”を叶える間取りを見つけてみてください。
【間取りを作りたい方は】
マドリーでは全国の建築家が、お客様の希望条件に合った間取りを作成しています。公式サイトから会員登録の上、マイページの作成依頼フォームよりご依頼ください。
【住宅会社にお悩みの方は】
『LIFULL HOME’S住まいの窓口』を通して、厳選した約200社の中からハウジングアドバイザーがあなたに合った建築会社をご提案いたします。その他に、家づくりの進め方や予算の立て方などなにから始めたらよいかお悩みの方のご相談も可能です。
『LIFULL HOME’S住まいの窓口』ご利用キャンペーンのご紹介

『LIFULL HOME’S 住まいの窓口』に個別相談or家づくり講座を受講いただける場合、ご予約完了後にキャンペーン価格で間取り作成できます。『お試しプラン』(1案)が無料、複数の建築家から間取り提案を受けられる『プレミアムプラン』なら
税込34,800円(15,000円OFF)!
※プレミアムプランの間取り提案数は平均9.8案。